RECLAIM, REUSE
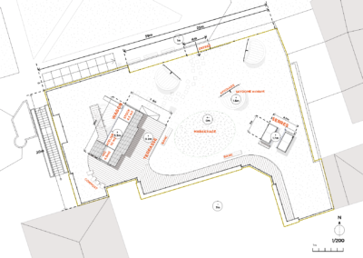
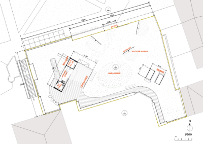
JARDIN VICTOR SEGALEN
PLATEFORME DE MARAICHAGE
JARDIN PRODUCTIF
Dans le cadre d’un mouvement Parisien ouvrant la réflexion sur l’aménagement des interstices urbains – notamment des jardins en ville – l’aménagement du jardin Victor Segalen vise à créer les conditions d’appropriation de ce dernier et d’enrichir le programme avec les futurs usagers. Le caractère expérimental du projet, aboutit à un prototype de jardin urbain, préfigurant les possibles.
ESPACE PUBLIC ²
Le jardin constitue un processus inachevé à l’instar de la ville et du commun. Le jardinage, et le maraichage sont une activité « de terrain », ouvert au réel et aux situations. Ils sont un processus de travail permanent. La vision est globale mais l’action localisée. Le savoir allie connaissances théoriques, expérience et intuitions. Planter, élaguer, déplacer sont autant d’actions tactiques que tente le jardinier avec un horizon toujours idéal. Être sur le terrain, expérimenter, présager, dialoguer avec les plantes, les insectes, la terre, la météo… Autant d’éléments extérieurs avec lesquelles il s’agit de faire. Le jardin est un lieu d’expérimentation permanente, et ce à tous les niveaux.
ATELIER EN PLEIN-AIR
Mais il est également la métaphore d’un écosystème tant physique que social et culturel. Et, en tant qu’architectes, nous participons à « outiller » concrètement et en terme de savoir-faire la communauté qui le fait exister et dont il est l’expression. Sa construction a été pensée pour permettre l’appropriation, l’évolution. Nous concevons la structure spatiale et pratique sur laquelle va venir se déployer le processus d’appropriation.
JVS est un lieu tiers où vont s’expérimenter d’autres modes de gestions de l’espace « public » ou justement commun. Son plan masse et sa réalisation permettent une évolution qui permettront à terme de pleinement l’articuler au square adjacent. Il est un objet urbain manifeste et ouvert. La livraison un acte symbolique qui marque la fin mais aussi l’ouverture de potentiel. Les objets construits deviennent constitutifs du nouvel écosystème urbain amené à évoluer. L’architecte parti, c’est un nécessaire travail collectif engageant maitrise d’ouvrage, usagers et collectivité qui s’amorce…
PROGRAMME
Surface Total : 900 m²
Le wagon
Surface plancher : 19 m²
Dimension intérieure :
Sanitaires : 4.5m²
Atelier : 10 m²
Stockage : 4.5m²
Dimension extérieure : 10m x 2.3m H max : 3.3m
Charpente métal, panneaux sandwich, habillage extérieur bois, intérieur bois, toiture zinc.
Cheminement
La déambulation à travers le jardin s’effectue par le passage existant, celui-ci étant rehaussé sur la totalité de la coursive. Un cheminement bois de 160m² au total, longe chaque installation comme une ballade le long du jardin. La terrasse centrale permet d’accueillir les moments collectif
Surface : 140m²
Les plus
Mobilier de jardin
Serre en pleine terre, récupération eau de pluie
.
Lieu :9 rue Victor Segalen, Paris (75020 )
Commanditaire : Paris Habitat
Contexte : Aménager les toitures Végétalisé, développer la permaculture en ville.
Programme: Terrasse 140m², atelier 10m², serre en pleine terre, sanitaires, stockage, récupération d’eau.
Missions:
– Analyse des besoins
– Définition du programme APS
– Suivie déconstruction caserne de Reuilly, (Paris)
– Définition du protocole de récupération des matériaux
– Coordination techniques
– Suivi de chantier et documentation
– Edition, supports graphiques, communication
Partenaires : Association Multi’colors, APIJ BAT.
Design graphique : Nicolas Bascop
- Réemploi 70%
- Collaborations 80%
FAIRE PROJET A L’HEURE DES ECOSYSTEMES
PENSER ET CONSTRUIRE AVEC…
CONTEXTE
Le projet se définit du point de vue d’un territoire concret, culturel mais également conceptuel dans le sens ou il se construit dans une écologie spécifique. Le dessin et le chantier s’engagent dans, avec et pour un contexte local en appréhendant ses dimensions environnementales, économiques, sociales mais également culturelles et par extension citoyennes. L’acte de construire est un acte fort qu’il s’agit de penser en préservant et en ménageant le territoire d’intervention mais également comme l’opportunité de révéler et activer des dynamiques d’ordre multiple.
ACTEURS
Construire est l’occasion de faire communauté, de transmettre, d’impliquer… Tant dans le temps de sa conception que dans celui de sa production. Le projet est l’occasion de stimuler une créativité et une intelligence collective. Il constitue le ferment d’existence d’une nouvelle communauté (d’usagers d’acteurs…).
L’architecte a pour responsabilité de penser les conditions d’existence de son projet. La responsabilité ne porte pas simplement sur une décennale mais est traversée d’enjeux éthiques. Le projet participe de cet écosystème global mais interpelle une nécessaire prise de position et choix d’« entrées » : enjeux technologiques, problématiques environnementales, enjeux sociaux et politiques… Pour notre part, le projet a d’abord pour vocation à participer à un mieux vivre ensemble et à faire monde commun, problématiques avant tout culturelles et sociales mais engageant en profondeur les questions techniques et théoriques.
Construire est l’occasion d’apprendre et de transmettre, d’échanger. En ce sens, le temps du chantier constitue un moment clés dans lequel engagé des dynamiques de formation mais également des dynamiques d’expérimentation concrète pour des entreprises et des maitrises d’ouvrages en recherche de nouvelle manière de faire.
REEMPLOI
Construire est aussi le moment de questionner nos discours et nos savoir-faire, d’éprouver une pratique d’architecte. Par exemple, que signifie construire en réemploi ? La question ne porte pas tant pour nous sur qu’est-ce qui se démonte et se remonte, sur ce qui se valorise que sur qu’est-ce que signifie construire avec cette matière première constitutive de nos environnements urbains. À l’instar des architectes qui explorer la véracité des matériaux et composant. Faire en réemploi est une manière pour nous de réengager très concrètement notre pratique et nos savoir-faire d’architecte. Dans une période où l’architecture est soumise au catalogue et à la norme, il s’agit pour nous de réengager une tradition de l’intelligence et de l’expérimentation constructive. Dans l’exemple de JVS, faire en réemploi sous forme de chantier-école constitue un exercice manifeste d’architecture dont l’expression construite constitue le résultat une manière singulière de faire projet.
Le réemploi constitue une forme d’éthique mais incite également une recherche plastique. Elle appelle également un processus de conception singulier qui affirme l’itération, l’expérimentation comme constitutive de la pratique. Nous ne sommes pas dans une pensée du catalogue où l’architecte assemble les produits finis et normés, « innovants » et durables.
Il n’est pas question ici d’innovation mais d’intelligence, intelligence dans la conception et dans le dialogue avec les autres acteurs (BET, maitrise d’ouvrage…). Chaque projet réaffirme sa singularité, chaque construction est résolument unique. À l’enjeu éthique s’associe la réaffirmation d’un métier et de son exigence.
.

